駐車スペースも確保されています!!
最寄り駅まで徒歩5分の好立地!
新城ICまで約2km!交通アクセスも良好!!
駐車スペースも確保されています!!
最寄り駅まで徒歩5分の好立地!
新城ICまで約2km!交通アクセスも良好!!
|
| 所在地 | 愛知県新城市緑が丘三丁目 |
|---|---|
| 交通 | JR飯田線 大海駅 徒歩5分 |
| 築年月 | 1990/1 | 新築/中古 | 中古 |
|---|---|---|---|
| 面積 | 124.62m² | 計測方式 | 壁芯 |
| バルコニー | 6.6m² | 向き | 南 |
| 建物階数 | 地上2階 | 部屋階数 | 2階 |
| 建物構造 | 木造 | ||
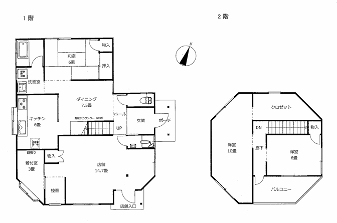
| 間取内容 |
3DK+店舗+S、ウォークインクロゼット付 |
||
| 駐車場 | 有り、3~4台 | 取引態様 | 専任 |
| 引渡/入居時期 | 期日指定 2026/04 下旬 | 現況 | 居住中 |
| 地目 | 宅地 | 用途地域 | 無指定 |
| 都市計画 | 市街化調整区域 | 地勢 | 平坦 |
| 土地面積 | 211.30m² | 土地面積計測方式 | 公簿 |
| 建ぺい率 | 60% | 容積率 | 200% |
| 土地権利 | 所有権 | 接道状況 | 一方 |
| 接道方向1 | 南東 | 接道間口1 | 10m |
| 接道種別1 | 公道 | 接道幅員1 | 11.3m |
| 周辺環境 |
東郷東 東郷中校区 |
||
| 設備・条件 | 上下水道、電気、プロパン |
||
| 物件番号 | 044 | ||
| 特記事項 | ・別棟、物置(倉庫)あり ・店舗付き(元美容室) ・契約不適合責任免責 ・司法書士の指定あり |
||
三京不動産
〒441-1331 愛知県新城市庭野字東萩野20番地
TEL:0536-23-5809
受付時間:9:00 ~ 18:00(不定休)
宅建免許番号:愛知県知事免許 (10) 第13504号
LINEでお問い合わせ

※送信後に確認の自動返信メールが送信されます。自動返信メールが届かない場合、「メールアドレスの入力間違い」「迷惑メール振り分け」などの可能性がありますのでご注意ください。
※お問い合わせいただくことで、メルマガや電話などのしつこい営業活動をすることは一切ありませんので、お気軽にご相談ください。